St George Motorboat Club is a waterfront club that provides excellent service and a friendly atmosphere to the community. The project aims to upgrade and enhance its facilities, further improving the club’s offerings.
- Traditional Custodians of the land: Eora Nation
- Client: St George Motor Boat Club
- Project: Alterations and extension of club and carpark.
- Location: Sans Souci
- Project Duration: 2019 – 2020
- Team: Matthew Hornby, Raj Krish, Fathima Ismail



Brief: To develop a DA architectural package to accommodate the following:
An extension to the rear of the club. The proposed extension would have an impact on two levels of the club. The extension would require the main function room to be redesigned and the ground floor café outdoor seating area to be upgraded to a new layout.
Improve the circulation through the club to accommodate the elderly and accessible patrons better.
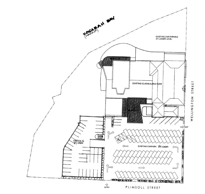
Upgrade the front car parking to accommodate additional cars and enhance the visual aspect of the car park.
Design complexity: The proposed extension external elevations needed to be sympathetic to the existing building.
Local council requirements around the flood level setbacks from the water’s edge also need to be addressed in the rear extension.
The proposed extension to the car park required a design to increase the parking numbers by excavating down a section of the existing car park. This design also needed to ensure there was no impact on the current views of surrounding residents. In addition, a review was implemented to identify how to improve the architectural aesthetics to enhance the impact on the surrounding area better.
For this project, all codes and regulations were adhered to. With the proposed circulations between levels of the club, accessibility to the levels were designed to meet the BCA and AS1428.1 codes.
Previous project
KFC South Penrith
This project
St George Motorboat Club
For more information about this project or any other project please contact us.
Back to projects
Next project
Anaconda Kelso